Description du bien
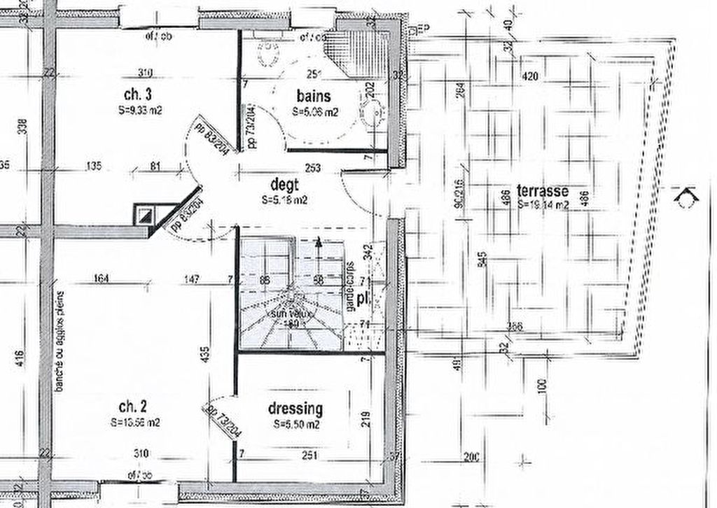
Notre agence Marc VERNIER IMMOBILIER (MVI) vous propose, sur Besançon, dans le quartier rue de Dole/Polygone, cette maison mitoyenne contemporaine neuve en cours de finitions de 5 pièces, de plain-pied et 1er étage. Vous trouverez au rez de chaussée une entrée ouvrant sur un grand salon de plus de 60 m² avec cuisine ouverte ayant accès sur le jardin. A l’étage 3 Chambres et salle de bains ainsi que des stationnements privatifs. Cette maison est proche de toutes commodités et des commerces, ainsi que du centre-ville historique en 10min à Pieds. Elle se situe sur un terrain d’environ 2ares 50 ca, calme avec peu de vis à vis.
maison contemporaine (toit plat) neuve en fin de construction livrée clés en main







